- 最近有什么新盘吗?一起聊聊
联发·红山新澍
在售
楼盘详情
-
楼盘名称联发·红山新澍
-
参考单价元/m²起
-
参考总价万元以下
-
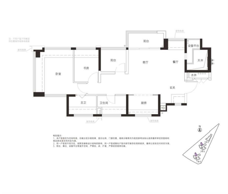
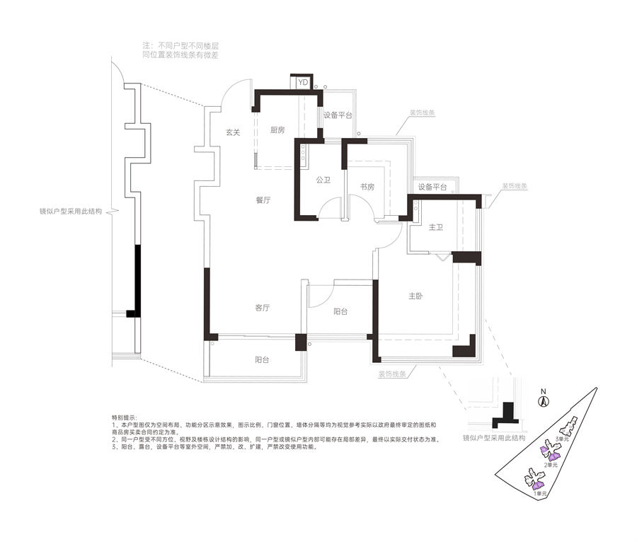
户 型
二室(3) 三室(1)
查看户型分析 -
物业类型住宅
-
楼盘地址深圳·龙华·红山·民塘路
-
环 线
-
开 发 商
-
绿 化 率33%
-
拿地时间
-
建筑类型
-
产权年限
-
容 积 率2.5
-
装修状况
-
车位情况1:1.08
-
物业公司联粤物业
-
物业费用5.8元元/m²*月
-
水电燃气
深圳买房交流群-104群(463)
楼盘动态
近期
踩盘
近7天有置业管家实勘本盘
























